Tegning Pa Tilbygg

Steg 4 Tegne Og Plassere Byggverket Direktoratet For Byggkvalitet

Steg 4 Tegne Og Plassere Byggverket Direktoratet For Byggkvalitet

Slik Tegner Du Ditt Eget Tilbygg Dnb Eiendom

Slik Tegner Du Ditt Eget Tilbygg Dnb Eiendom

Bilder Tegninger For Hjellestad Seopp

Bilder Tegninger For Hjellestad Seopp

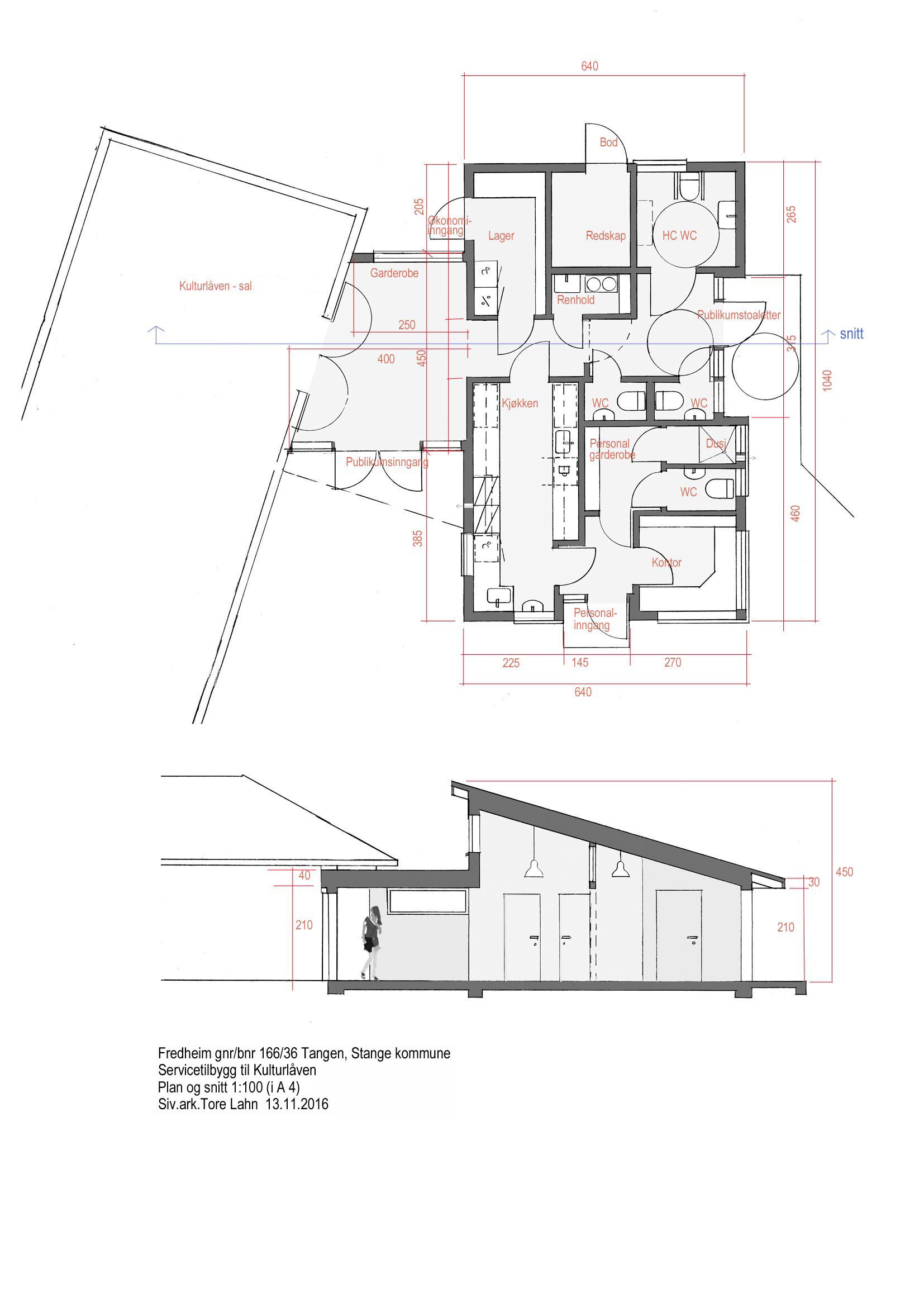
Tegninger Tilbygg Kulturlaven 2 Ingeborg Refling Hagens

Tegninger Tilbygg Kulturlaven 2 Ingeborg Refling Hagens

Tilbygg 2 Www Hadlabrekko No

Tilbygg 2 Www Hadlabrekko No

Pris Pa 35 M2 Tilbygg Byggebolig

Pris Pa 35 M2 Tilbygg Byggebolig

Pris Pa 35 M2 Tilbygg Byggebolig

Det finnes ikke tegninger til boligen sa kunden har malt opp.

Tegning pa tilbygg. Et pabygg der man bygger i hoyden krever byggesoknad med ansvarsretter men dette er ikke alltid tilfellet med et tilbygg. Artikkelen gir svar pa de vanligste sporsmalene om byggesoknad for tilbygg. Jeg far mange henvendelser om tegning av tilbygg ogeller pabygg. Her har jeg skrevet litt om det.

Har du litt anlegg for tegning eller relevant erfaring er det ingen ting i veien for a tegne selv. Mer om denne her. Har lagt ut en annonse pa mittanbud men ikke. Dersom utvidelsen er under 50 kvadratmeter kan du selv lage tegninger fylle inn skjemaer og soknader og gjennomfore byggingen opplyser arkitekt og blogger connie hendseth.

Mignisse 23092019 0810 42 0 tilbygg pabygg. Her kan du lese mer om prosjektet. De fleste ender opp med a bruke mellom kr 23000 og 45000 inkl mva per kvadratmeter. Du kan selv lage tegninger og soke pa tilbygg under 50 kvadrat.

Jeg hjelper deg gjerne med a fa planene ned pa papir i en oversiktlig tegning. Her er ogsa et tilbygg med vinterhagestue. Her pa disse sidene finner du inspirasjon tips og veiledninger til hvordan du selv kan bygge et tilbygg og fa flere kvadratmeter. Dette inkluderer arbeid og materialer og alle fagomrader gravinggrunnarbeider grunnmur tomrerarbeid rorlegger elektriker og blikkenslager.

Et tilbygg er en utvidelse av et byggverk der man bygger utover altsa at man oker bygningens grunnflate bya. Vi har hyttetomt med hytte pa ca 60 kvm med toalett og kjokken. Detaljnivaet som kreves varierer fra prosjekt til prosjekt det samme gjelder hvilke type tegninger man ma lage og hvilken malestokk storrelse tegningene er i. Dette er et prosjekt med bade tilbygg og pabygg.

Jeg har jobbet med flere tilbyggsprosjekt den siste tiden og disse kommer etterhvert pa bloggen. Tilbygg ma ikke forveksles med pabygg. I forbindelse med byggeprosjekter sa trenger man fagmessig utforte byggesakstegninger. Trenger du a fa en tegning til nabovarsel eller byggesoknad.

Denne kunden onsker to tilbygg til boligen bygget pa slutten av 1940 tallet. Kontakt fram ingeniorkontor as for hjelp til tegning prosjektering og. Legg igjen en kommentar nederst pa siden. I tillegg tegnet jeg tilbygg over to plan med kjeller.

Revidert tegning vedr tilbygg pa hytte ved ramstadsjoen. Hovedhuset har fatt pabygg med en etasje. Uansett om det er stort eller lite tilbygg du har planlagt. Hva er forresten forskjellen pa tilbygg og pabygg.

Mangler du noen ekstra kvadratmeter i boligen kan et tilbygg vaere losningen.

Kostnad Ved Forskjellige Taklosninger Ved Tilbygg Byggebolig

Kostnad Ved Forskjellige Taklosninger Ved Tilbygg Byggebolig

Tegne Tilbygg Bimteknikk No

Tegne Tilbygg Bimteknikk No

Tegninger For Oppgradering Og Tilbygg Til Eldre Hus Levert Av

Tegninger For Oppgradering Og Tilbygg Til Eldre Hus Levert Av

Tilbygg Til Eldre Bolig Ditt Tegnekontor

Tilbygg Til Eldre Bolig Ditt Tegnekontor

Tegning Byggmester Skaatun

Tegning Byggmester Skaatun

Tilbygg For Enebolig I Elverum Norge Solark No

Tilbygg For Enebolig I Elverum Norge Solark No

Utkast Til Tilbygg Onsker Tilbakemelding Side 2 Byggebolig

Utkast Til Tilbygg Onsker Tilbakemelding Side 2 Byggebolig

Tilbygg Med Nytt Inngangsparti Takark Og Balkong Ditt Tegnekontor

Tilbygg Med Nytt Inngangsparti Takark Og Balkong Ditt Tegnekontor

Rodelokka Vel Byantikvaren Godtar Tilbygg Til Velhuset

Rodelokka Vel Byantikvaren Godtar Tilbygg Til Velhuset

Hyttas Tilbygg Ble Perfekt For Begge Generasjonene Snekker Team

Hyttas Tilbygg Ble Perfekt For Begge Generasjonene Snekker Team

Tilbygg Den Komplette Guiden Priser Regler Prosess

Tilbygg Den Komplette Guiden Priser Regler Prosess

Krav Til Tegningsgrunnlag Horten Kommune

Krav Til Tegningsgrunnlag Horten Kommune

Plan Og Utviklingskomite 04 10 06 Sak 69 06 1719 32 59

Plan Og Utviklingskomite 04 10 06 Sak 69 06 1719 32 59

Utbyggingsteknikk As Hytte Tilbyggeide Hyttefelt Bondalen Orsta

Utbyggingsteknikk As Hytte Tilbyggeide Hyttefelt Bondalen Orsta

Glassveranda Utbygg Pabygg Tilbygg Eller Garasje Del 3

Glassveranda Utbygg Pabygg Tilbygg Eller Garasje Del 3

Source : pinterest.com